Для полноценной работы сайта, необходимо включить JavaScript!
Тюмень
Тюмень
Тюмень
Тюмень
Екатеринбург
Екатеринбург
Готово
Подберём квартиру за
пару кликов
Найти квартиру
пару кликов
*2011
Недвижимость
Проекты
Квартиры
Ипотека
О компании
Контакты
Тендеры
Акции и скидки
Подборка
Меню
Меню
Назад
Проекты
Квартиры
Парковочные места
Кладовые
Коммерция
Контакты
О компании
Все проекты
Все проекты
3 проекта
Чистые Пруды
278 квартир
от 3 810 000 ₽
Астро
82 квартиры
от 6 152 000 ₽
Счастье
79 квартир
от 2 480 000 ₽
Все квартиры
439 предложений
Чистые Пруды
278 предложений
Астро
82 предложения
Счастье
79 предложений
Все парковки
268 предложений
Чистые Пруды
204 предложения
Астро
64 предложения
Все кладовые
220 предложений
Чистые Пруды
103 предложения
Астро
117 предложений
Все коммерция
14 предложений
Чистые Пруды
6 предложений
Астро
7 предложений
Счастье
1 предложение
Скидки до 20%
на все квартиры
Консультация
Тюмень
Тюмень
Выберите город
Тюмень
Тюмень
Екатеринбург
Екатеринбург
Готово
*2011
Проекты
3
/
Недвижимость
941
Квартиры
439
Кладовые
220
Машиноместа
268
Коммерция
14
Подобрать квартиру
Проект
ЧИСТЫЕ ПРУДЫ
Проект
ЧИСТЫЕ ПРУДЫ
Проект
Любой
АСТРО
Счастье
ЧИСТЫЕ ПРУДЫ
Готово
Количество комнат
Студия
1
2
3
Стоимость, ₽
от
2480000.00
-
до
11480000.00
Площадь, м²
от
21,5
-
до
100,7
Срок сдачи
Любой
Срок сдачи
Любой
Срок сдачи
Любой
2 кв. 2026г.
3 кв. 2026г.
3 кв. 2027г.
2 кв. 2028г.
Готово
Показать все фильтры
Сбросить
Кофе на свежем воздухе
Высоко сижу, далеко гляжу
«Мне нечего надеть»
Большииииииие планировки
Нашли 186 квартир
Сначала дешевле
Сначала дешевле
Сортировать
Сначала дешевле
Сначала дороже
Больше площадь
Меньше площадь
Готово
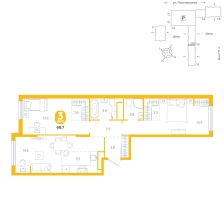
2-комнатная, 68.7 м²
8 096 000 ₽
10 120 000 ₽
В ипотеку — от
35 973 ₽/мес
ЧИСТЫЕ ПРУДЫ, этаж 5 из 24
Комфорт
Сдача в 2027
скидка 2 024 000 ₽
Два санузла
Мастер-спальня
2-комнатная, 68.7 м²
8 104 000 ₽
10 130 000 ₽
В ипотеку — от
35 973 ₽/мес
ЧИСТЫЕ ПРУДЫ, этаж 6 из 24
Комфорт
Сдача в 2027
скидка 2 026 000 ₽
Два санузла
Мастер-спальня
2-комнатная, 68.6 м²
8 104 000 ₽
10 130 000 ₽
В ипотеку — от
35 973 ₽/мес
ЧИСТЫЕ ПРУДЫ, этаж 19 из 24
Комфорт
Сдача в 2027
скидка 2 026 000 ₽
Два санузла
Окна на две стороны
2-комнатная, 69.2 м²
8 104 000 ₽
10 130 000 ₽
В ипотеку — от
35 973 ₽/мес
ЧИСТЫЕ ПРУДЫ, этаж 7 из 24
Комфорт
Сдача в 2027
скидка 2 026 000 ₽
Два санузла
Гардеробная
2-комнатная, 69.2 м²
8 112 000 ₽
10 140 000 ₽
В ипотеку — от
35 973 ₽/мес
ЧИСТЫЕ ПРУДЫ, этаж 8 из 24
Комфорт
Сдача в 2027
скидка 2 028 000 ₽
Два санузла
Гардеробная
2-комнатная, 68.7 м²
8 120 000 ₽
10 150 000 ₽
В ипотеку — от
35 973 ₽/мес
ЧИСТЫЕ ПРУДЫ, этаж 8 из 24
Комфорт
Сдача в 2027
скидка 2 030 000 ₽
Два санузла
Мастер-спальня
2-комнатная, 69.2 м²
8 120 000 ₽
10 150 000 ₽
В ипотеку — от
35 973 ₽/мес
ЧИСТЫЕ ПРУДЫ, этаж 9 из 24
Комфорт
Сдача в 2027
скидка 2 030 000 ₽
Два санузла
Гардеробная
Нужна помощь с выбором?
Пройти квиз
2-комнатная, 68.7 м²
8 136 000 ₽
10 170 000 ₽
В ипотеку — от
35 973 ₽/мес
ЧИСТЫЕ ПРУДЫ, этаж 9 из 24
Комфорт
Сдача в 2027
скидка 2 034 000 ₽
Два санузла
Мастер-спальня
2-комнатная, 69.2 м²
8 136 000 ₽
10 170 000 ₽
В ипотеку — от
35 973 ₽/мес
ЧИСТЫЕ ПРУДЫ, этаж 10 из 24
Комфорт
Сдача в 2027
скидка 2 034 000 ₽
Два санузла
Гардеробная
2-комнатная, 69.2 м²
8 144 000 ₽
10 180 000 ₽
В ипотеку — от
35 973 ₽/мес
ЧИСТЫЕ ПРУДЫ, этаж 11 из 24
Комфорт
Сдача в 2027
скидка 2 036 000 ₽
Два санузла
Гардеробная
2-комнатная, 69.2 м²
8 184 000 ₽
10 230 000 ₽
В ипотеку — от
35 973 ₽/мес
ЧИСТЫЕ ПРУДЫ, этаж 15 из 24
Комфорт
Сдача в 2027
скидка 2 046 000 ₽
Два санузла
Гардеробная
показать ещё
Пред
1
...
13
14
15
16
17
След
закрыть модальное окно
Общие параметры
Проект
АСТРО
Счастье
ЧИСТЫЕ ПРУДЫ
Стоимость, ₽
от
2480000.00
-
до
11480000.00
Площадь, м²
от
21,5
-
до
100,7
Параметры объекта
Студия
1
2
3
Этаж
Любой
Этаж
Любой
Этаж
Любой
1
2
3
4
5
6
7
8
9
10
11
12
13
14
15
16
17
18
19
20
21
22
23
24
Готово
Дом
ГП-1 (ЧИСТЫЕ ПРУДЫ)
Дом
ГП-1 (ЧИСТЫЕ ПРУДЫ)
Дом
Любой
ГП-1 (АСТРО)
ГП-1 (ЧИСТЫЕ ПРУДЫ)
ГП-2 (ЧИСТЫЕ ПРУДЫ)
ГП-4 (Счастье)
ГП-5 (Счастье)
Готово
Срок сдачи
Любой
Срок сдачи
Любой
Срок сдачи
Любой
2 кв. 2026г.
3 кв. 2026г.
3 кв. 2027г.
2 кв. 2028г.
Готово
Дополнительно
Особенности квартир
Два санузла
Мастер-спальня
Гардеробная
Угловое окно
Терраса
Окна на две стороны
Вид во двор
Постирочная
Вид на лес
Вид на улицу
Лоджия
Показать 186 квартир
Сбросить
Мы применяем cookie для стабильной работы сайта и аналитики. Вы можете настроить использование cookie, а также узнать подробности в
политике конфиденциальности
.
Настроить
Принять всё
закрыть модальное окно
Настройка cookies
Обязательные
Файлы cookie, которые необходимы для функционирования паритет.рф
Маркетинговые и аналитические
Эти cookie помогают отслеживать работу сайта, собирать статистику использования и измерять эффективность нашей рекламы.
Проекты
Недвижимость
Ипотека
Подборки
закрыть модальное окно
Заказать такси
Оставьте номер — перезвоним и уточним детали
Номер телефона
Отправить
Нажимая отправить вы соглашаетесь с
обработкой персональных данных
закрыть модальное окно
Получите консультацию
Позвоним в течение 15 минут и ответим на все ваши вопросы
Ваше имя
Номер телефона