Для полноценной работы сайта, необходимо включить JavaScript!
Екатеринбург
Екатеринбург
Тюмень
Тюмень
Екатеринбург
Екатеринбург
Готово
Подберём квартиру за
пару кликов
Найти квартиру
пару кликов
*2011
Недвижимость
Проекты
Квартиры
Ипотека
О компании
Контакты
Тендеры
Акции и скидки
Подборка
Меню
Меню
Назад
Проекты
Квартиры
Парковочные места
Кладовые
Коммерция
Контакты
О компании
Все проекты
Все проекты
4 проекта
Комсомольский
290 квартир
от 4 200 000 ₽
Бодровский
113 квартир
от 4 016 000 ₽
Тёплые кварталы
85 квартир
от 5 336 000 ₽
УРАЛКВАРТАЛ
336 квартир
от 3 600 000 ₽
Все квартиры
824 предложения
Комсомольский
290 предложений
Бодровский
113 предложений
Тёплые кварталы
85 предложений
УРАЛКВАРТАЛ
336 предложений
Все парковки
86 предложений
Бодровский
18 предложений
Тёплые кварталы
68 предложений
Все кладовые
157 предложений
Комсомольский
59 предложений
Бодровский
57 предложений
Тёплые кварталы
41 предложение
Все коммерция
8 предложений
Комсомольский
1 предложение
Бодровский
6 предложений
Тёплые кварталы
1 предложение
Скидки до 20%
на все квартиры
Консультация
Екатеринбург
Екатеринбург
Выберите город
Тюмень
Тюмень
Екатеринбург
Екатеринбург
Готово
*2011
Проекты
4
/
Недвижимость
1 075
Квартиры
824
Кладовые
157
Машиноместа
86
Коммерция
8
Подобрать квартиру
Проект
Комсомольский
Проект
Комсомольский
Проект
Любой
Бодровский
Комсомольский
Тёплые кварталы
УРАЛКВАРТАЛ
Готово
Количество комнат
Студия
1
2
3
4+
Стоимость, ₽
от
3600000.00
-
до
13512000.00
Площадь, м²
от
21,7
-
до
107,1
Срок сдачи
Любой
Срок сдачи
Любой
Срок сдачи
Любой
3 кв. 2026г.
3 кв. 2027г.
4 кв. 2027г.
4 кв. 2028г.
2 кв. 2029г.
Готово
Показать все фильтры
Сбросить
Кофе на свежем воздухе
Высоко сижу, далеко гляжу
«Мне нечего надеть»
Большииииииие планировки
Нашли 290 квартир
Сначала дешевле
Сначала дешевле
Сортировать
Сначала дешевле
Сначала дороже
Больше площадь
Меньше площадь
Готово
1-комнатная, 42.9 м²
7 192 000 ₽
8 990 000 ₽
В ипотеку — от
34 453 ₽/мес
Комсомольский, этаж 11 из 16
Комфорт
Сдача в 2027
скидка 1 798 000 ₽
Мастер-спальня
Гардеробная
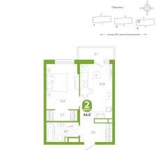
1-комнатная, 44 м²
7 200 000 ₽
9 000 000 ₽
В ипотеку — от
34 491 ₽/мес
Комсомольский, этаж 9 из 16
Комфорт
Сдача в 2027
скидка 1 800 000 ₽
Мастер-спальня
Гардеробная
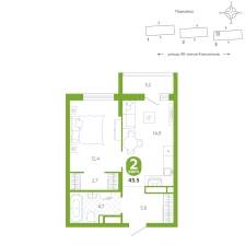
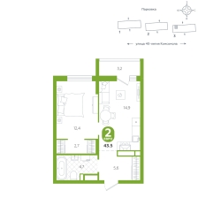
1-комнатная, 43.5 м²
7 200 000 ₽
9 000 000 ₽
В ипотеку — от
34 491 ₽/мес
Комсомольский, этаж 14 из 16
Комфорт
Сдача в 2027
скидка 1 800 000 ₽
Мастер-спальня
Гардеробная
1-комнатная, 44.7 м²
7 200 000 ₽
9 000 000 ₽
В ипотеку — от
34 491 ₽/мес
Комсомольский, этаж 4 из 16
Комфорт
Сдача в 2027
скидка 1 800 000 ₽
Мастер-спальня
Гардеробная
1-комнатная, 43.5 м²
7 216 000 ₽
9 020 000 ₽
В ипотеку — от
34 568 ₽/мес
Комсомольский, этаж 12 из 16
Комфорт
Сдача в 2027
скидка 1 804 000 ₽
Мастер-спальня
Гардеробная
2-комнатная, 41.3 м²
7 216 000 ₽
9 020 000 ₽
В ипотеку — от
34 568 ₽/мес
Комсомольский, этаж 16 из 16
Комфорт
Сдача в 2027
скидка 1 804 000 ₽
Гардеробная
Вид на улицу
1-комнатная, 45.4 м²
7 216 000 ₽
9 020 000 ₽
В ипотеку — от
34 568 ₽/мес
Комсомольский, этаж 2 из 16
Комфорт
Сдача в 2027
скидка 1 804 000 ₽
Мастер-спальня
Гардеробная
Нужна помощь с выбором?
Пройти квиз
1-комнатная, 44 м²
7 232 000 ₽
9 040 000 ₽
В ипотеку — от
34 644 ₽/мес
Комсомольский, этаж 11 из 16
Комфорт
Сдача в 2027
скидка 1 808 000 ₽
Мастер-спальня
Гардеробная
1-комнатная, 42.9 м²
7 264 000 ₽
9 080 000 ₽
В ипотеку — от
34 798 ₽/мес
Комсомольский, этаж 15 из 16
Комфорт
Сдача в 2027
скидка 1 816 000 ₽
Мастер-спальня
Гардеробная
1-комнатная, 44 м²
7 272 000 ₽
9 090 000 ₽
В ипотеку — от
34 836 ₽/мес
Комсомольский, этаж 13 из 16
Комфорт
Сдача в 2027
скидка 1 818 000 ₽
Мастер-спальня
Гардеробная
1-комнатная, 44 м²
7 304 000 ₽
9 130 000 ₽
В ипотеку — от
34 989 ₽/мес
Комсомольский, этаж 15 из 16
Комфорт
Сдача в 2027
скидка 1 826 000 ₽
Мастер-спальня
Гардеробная
показать ещё
Пред
1
...
13
14
15
16
17
...
27
След
закрыть модальное окно
Общие параметры
Проект
Бодровский
Комсомольский
Тёплые кварталы
УРАЛКВАРТАЛ
Стоимость, ₽
от
3600000.00
-
до
13512000.00
Площадь, м²
от
21,7
-
до
107,1
Параметры объекта
Студия
1
2
3
4+
Этаж
Любой
Этаж
Любой
Этаж
Любой
1
2
3
4
5
6
7
8
9
10
11
12
13
14
15
16
17
18
19
20
21
22
23
25
Готово
Дом
Любой
Дом
Любой
Дом
Любой
IV очередь (Тёплые кварталы)
ГП-1 (Бодровский)
ГП-1 (Комсомольский)
ГП-2 (Комсомольский)
ГП-3 (Комсомольский)
ГП-9 (УРАЛКВАРТАЛ)
ГП-10 (УРАЛКВАРТАЛ)
Готово
Срок сдачи
Любой
Срок сдачи
Любой
Срок сдачи
Любой
3 кв. 2026г.
3 кв. 2027г.
4 кв. 2027г.
4 кв. 2028г.
2 кв. 2029г.
Готово
Дополнительно
Особенности квартир
Два санузла
Мастер-спальня
Гардеробная
Угловое окно
Терраса
Окна на две стороны
Окна на три стороны
Вид во двор
Окно в ванной
Вид на улицу
Лоджия
Показать 290 квартир
Сбросить
Мы применяем cookie для стабильной работы сайта и аналитики. Вы можете настроить использование cookie, а также узнать подробности в
политике конфиденциальности
.
Настроить
Принять всё
закрыть модальное окно
Настройка cookies
Обязательные
Файлы cookie, которые необходимы для функционирования паритет.рф
Маркетинговые и аналитические
Эти cookie помогают отслеживать работу сайта, собирать статистику использования и измерять эффективность нашей рекламы.
Проекты
Недвижимость
Ипотека
Подборки
закрыть модальное окно
Заказать такси
Оставьте номер — перезвоним и уточним детали
Номер телефона
Отправить
Нажимая отправить вы соглашаетесь с
обработкой персональных данных
закрыть модальное окно
Получите консультацию
Позвоним в течение 15 минут и ответим на все ваши вопросы
Ваше имя
Номер телефона