Для полноценной работы сайта, необходимо включить JavaScript!
Екатеринбург
Екатеринбург
Тюмень
Тюмень
Екатеринбург
Екатеринбург
Готово
Подберём квартиру за
пару кликов
Найти квартиру
пару кликов
*2011
Недвижимость
Проекты
Квартиры
Ипотека
О компании
Контакты
Тендеры
Подборка
Меню
Меню
Назад
Проекты
Квартиры
Парковочные места
Кладовые
Коммерция
Контакты
О компании
Все проекты
Все проекты
3 проекта
Комсомольский
262 квартиры
от 3 880 000 ₽
Бодровский
106 квартир
от 4 320 000 ₽
Тёплые кварталы
96 квартир
от 5 480 000 ₽
Все квартиры
464 предложения
Комсомольский
262 предложения
Бодровский
106 предложений
Тёплые кварталы
96 предложений
Все парковки
106 предложений
Бодровский
27 предложений
Тёплые кварталы
79 предложений
Все кладовые
201 предложение
Комсомольский
77 предложений
Бодровский
68 предложений
Тёплые кварталы
56 предложений
Все коммерция
13 предложений
Комсомольский
4 предложения
Бодровский
8 предложений
Тёплые кварталы
1 предложение
Скидки до 2 200 000 ₽
только до 31 января
Консультация
Екатеринбург
Екатеринбург
Выберите город
Тюмень
Тюмень
Екатеринбург
Екатеринбург
Готово
*2011
Проекты
3
/
Недвижимость
784
Квартиры
464
Кладовые
201
Машиноместа
106
Коммерция
13
Подобрать квартиру
Проект
Комсомольский
Проект
Комсомольский
Проект
Любой
Бодровский
Комсомольский
Тёплые кварталы
Готово
Количество комнат
Студия
1
2
3
4+
Стоимость, ₽
от
3880000.00
-
до
14070000.00
Площадь, м²
от
21,6
-
до
107,1
Срок сдачи
Любой
Срок сдачи
Любой
Срок сдачи
Любой
3 кв. 2026г.
3 кв. 2027г.
4 кв. 2027г.
Готово
Показать все фильтры
Сбросить
2-комн. квартиры
С мастер-спальней
C террасой
С гардеробной
С двумя санузлами
Нашли 262 квартиры
Сначала дешевле
Сначала дешевле
Сортировать
Сначала дешевле
Сначала дороже
Больше площадь
Меньше площадь
Готово
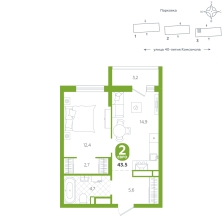
1-комнатная, 43.5 м²
7 430 000 ₽
8 130 000 ₽
В ипотеку — от
35 593 ₽/мес
Комсомольский, этаж 10 из 16
Комфорт
Сдача в 2027
Мастер-спальня
Гардеробная
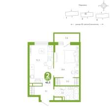
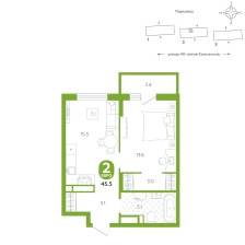
1-комнатная, 45.5 м²
7 600 000 ₽
8 350 000 ₽
В ипотеку — от
35 973 ₽/мес
Комсомольский, этаж 9 из 20
Комфорт
Сдача в 2027
Мастер-спальня
Гардеробная
1-комнатная, 45.3 м²
7 600 000 ₽
8 350 000 ₽
В ипотеку — от
35 973 ₽/мес
Комсомольский, этаж 12 из 20
Комфорт
Сдача в 2027
Мастер-спальня
Гардеробная
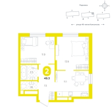
2-комнатная, 49.3 м²
7 670 000 ₽
8 420 000 ₽
В ипотеку — от
35 973 ₽/мес
Комсомольский, этаж 4 из 20
Комфорт
Сдача в 2027
Два санузла
Окна на две стороны
1-комнатная, 45.5 м²
7 680 000 ₽
8 430 000 ₽
В ипотеку — от
35 973 ₽/мес
Комсомольский, этаж 17 из 20
Комфорт
Сдача в 2027
Мастер-спальня
Гардеробная
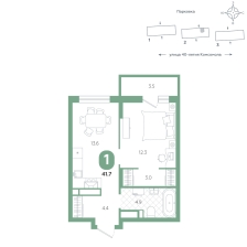
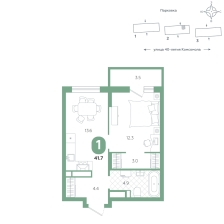
1-комнатная, 41.7 м²
7 740 000 ₽
8 490 000 ₽
В ипотеку — от
35 973 ₽/мес
Комсомольский, этаж 17 из 20
Комфорт
Сдача в 2027
Мастер-спальня
Гардеробная
1-комнатная, 41.7 м²
7 760 000 ₽
8 510 000 ₽
В ипотеку — от
35 973 ₽/мес
Комсомольский, этаж 19 из 20
Комфорт
Сдача в 2027
Мастер-спальня
Гардеробная
Нужна помощь с выбором?
Пройти квиз
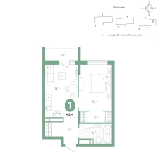
1-комнатная, 42.4 м²
7 860 000 ₽
8 610 000 ₽
В ипотеку — от
35 973 ₽/мес
Комсомольский, этаж 14 из 16
Комфорт
Сдача в 2027
Мастер-спальня
Гардеробная
2-комнатная, 52.9 м²
7 870 000 ₽
8 620 000 ₽
В ипотеку — от
35 973 ₽/мес
Комсомольский, этаж 3 из 20
Комфорт
Сдача в 2027
Два санузла
Окна на две стороны
2-комнатная, 52.9 м²
7 890 000 ₽
8 640 000 ₽
В ипотеку — от
35 973 ₽/мес
Комсомольский, этаж 5 из 20
Комфорт
Сдача в 2027
Два санузла
Окна на две стороны
2-комнатная, 53.1 м²
7 910 000 ₽
8 660 000 ₽
В ипотеку — от
35 973 ₽/мес
Комсомольский, этаж 4 из 20
Комфорт
Сдача в 2027
Два санузла
Окна на две стороны
показать ещё
Пред
1
...
11
12
13
14
15
...
24
След
закрыть модальное окно
Общие параметры
Проект
Бодровский
Комсомольский
Тёплые кварталы
Стоимость, ₽
от
3880000.00
-
до
14070000.00
Площадь, м²
от
21,6
-
до
107,1
Параметры объекта
Студия
1
2
3
4+
Дом
Любой
Дом
Любой
Дом
Любой
IV очередь (Тёплые кварталы)
ГП-1 (Бодровский)
ГП-1 (Комсомольский)
ГП-2 (Комсомольский)
ГП-3 (Комсомольский)
Готово
Срок сдачи
Любой
Срок сдачи
Любой
Срок сдачи
Любой
3 кв. 2026г.
3 кв. 2027г.
4 кв. 2027г.
Готово
Этаж
Любой
Этаж
Любой
Этаж
Любой
1
2
3
4
5
6
7
8
9
10
11
12
13
14
15
16
17
18
19
20
21
22
23
24
25
Готово
Дополнительно
Особенности квартир
Два санузла
Мастер-спальня
Гардеробная
Угловое окно
Терраса
Окна на две стороны
Окна на три стороны
Вид во двор
Окно в ванной
Вид на улицу
Лоджия
Показать 262 квартиры
Сбросить
Мы применяем cookie для стабильной работы сайта и аналитики. Вы можете настроить использование cookie, а также узнать подробности в
политике конфиденциальности
.
Настроить
Принять всё
закрыть модальное окно
Настройка cookies
Обязательные
Файлы cookie, которые необходимы для функционирования паритет.рф
Маркетинговые и аналитические
Эти cookie помогают отслеживать работу сайта, собирать статистику использования и измерять эффективность нашей рекламы.
Проекты
Недвижимость
Ипотека
Подборки
закрыть модальное окно
Заказать такси
Оставьте номер — перезвоним и уточним детали
Номер телефона
Отправить
Нажимая отправить вы соглашаетесь с
обработкой персональных данных
закрыть модальное окно
Получите консультацию
Позвоним в течение 15 минут и ответим на все ваши вопросы
Ваше имя
Номер телефона