Для полноценной работы сайта, необходимо включить JavaScript!
Тюмень
Тюмень
Тюмень
Тюмень
Екатеринбург
Екатеринбург
Готово
Подберём квартиру за
пару кликов
Найти квартиру
пару кликов
*2011
Недвижимость
Проекты
Квартиры
Ипотека
О компании
Контакты
Тендеры
Подборка
Меню
Меню
Назад
Проекты
Квартиры
Парковочные места
Кладовые
Коммерция
Контакты
О компании
Все проекты
Все проекты
3 проекта
Чистые Пруды
287 квартир
от 3 936 000 ₽
Астро
103 квартиры
от 7 024 000 ₽
Счастье
32 квартиры
от 2 736 000 ₽
Все квартиры
422 предложения
Чистые Пруды
287 предложений
Астро
103 предложения
Счастье
32 предложения
Все парковки
70 предложений
Астро
70 предложений
Все кладовые
267 предложений
Чистые Пруды
109 предложений
Астро
158 предложений
Все коммерция
14 предложений
Чистые Пруды
5 предложений
Астро
8 предложений
Счастье
1 предложение
Скидки до 20%
на все квартиры
Консультация
Тюмень
Тюмень
Выберите город
Тюмень
Тюмень
Екатеринбург
Екатеринбург
Готово
*2011
Проекты
3
/
Недвижимость
773
Квартиры
422
Кладовые
267
Машиноместа
70
Коммерция
14
Подобрать квартиру
Проект
ЧИСТЫЕ ПРУДЫ
Проект
ЧИСТЫЕ ПРУДЫ
Проект
Любой
АСТРО
Счастье
ЧИСТЫЕ ПРУДЫ
Готово
Количество комнат
Студия
1
2
3
Стоимость, ₽
от
2736000.00
-
до
11480000.00
Площадь, м²
от
20,8
-
до
100,7
Срок сдачи
Любой
Срок сдачи
Любой
Срок сдачи
Любой
4 кв. 2025г.
1 кв. 2026г.
3 кв. 2026г.
3 кв. 2027г.
Готово
Показать все фильтры
Сбросить
2-комн. квартиры
С мастер-спальней
C террасой
С гардеробной
С двумя санузлами
Нашли 31 квартиру
Сначала дешевле
Сначала дешевле
Сортировать
Сначала дешевле
Сначала дороже
Больше площадь
Меньше площадь
Готово
Студия, 26.4 м²
4 240 000 ₽
5 300 000 ₽
В ипотеку — от
20 311 ₽/мес
ЧИСТЫЕ ПРУДЫ, этаж 4 из 24
Комфорт
Сдача в 2027
скидка 1 060 000 ₽
Вид во двор
Студия, 26.4 м²
4 280 000 ₽
5 350 000 ₽
В ипотеку — от
20 503 ₽/мес
ЧИСТЫЕ ПРУДЫ, этаж 8 из 24
Комфорт
Сдача в 2027
скидка 1 070 000 ₽
Вид во двор
Студия, 26.4 м²
4 296 000 ₽
5 370 000 ₽
В ипотеку — от
20 580 ₽/мес
ЧИСТЫЕ ПРУДЫ, этаж 9 из 24
Комфорт
Сдача в 2027
скидка 1 074 000 ₽
Вид во двор
Студия, 26.4 м²
4 336 000 ₽
5 420 000 ₽
В ипотеку — от
20 771 ₽/мес
ЧИСТЫЕ ПРУДЫ, этаж 13 из 24
Комфорт
Сдача в 2027
скидка 1 084 000 ₽
Вид во двор
Студия, 26.4 м²
4 352 000 ₽
5 440 000 ₽
В ипотеку — от
20 848 ₽/мес
ЧИСТЫЕ ПРУДЫ, этаж 15 из 24
Комфорт
Сдача в 2027
скидка 1 088 000 ₽
Вид во двор
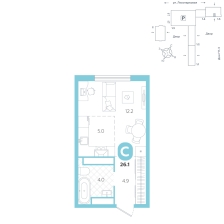
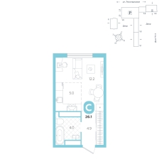
Студия, 26.1 м²
4 352 000 ₽
5 440 000 ₽
В ипотеку — от
20 848 ₽/мес
ЧИСТЫЕ ПРУДЫ, этаж 21 из 24
Комфорт
Сдача в 2027
скидка 1 088 000 ₽
Вид во двор
Студия, 26.4 м²
4 360 000 ₽
5 450 000 ₽
В ипотеку — от
20 886 ₽/мес
ЧИСТЫЕ ПРУДЫ, этаж 16 из 24
Комфорт
Сдача в 2027
скидка 1 090 000 ₽
Вид во двор
Нужна помощь с выбором?
Пройти квиз
Студия, 26.1 м²
4 360 000 ₽
5 450 000 ₽
В ипотеку — от
20 886 ₽/мес
ЧИСТЫЕ ПРУДЫ, этаж 22 из 24
Комфорт
Сдача в 2027
скидка 1 090 000 ₽
Вид во двор
Студия, 26.4 м²
4 376 000 ₽
5 470 000 ₽
В ипотеку — от
20 963 ₽/мес
ЧИСТЫЕ ПРУДЫ, этаж 17 из 24
Комфорт
Сдача в 2027
скидка 1 094 000 ₽
Вид во двор
Студия, 26.4 м²
4 384 000 ₽
5 480 000 ₽
В ипотеку — от
21 001 ₽/мес
ЧИСТЫЕ ПРУДЫ, этаж 18 из 24
Комфорт
Сдача в 2027
скидка 1 096 000 ₽
Вид во двор
Студия, 26.4 м²
4 416 000 ₽
5 520 000 ₽
В ипотеку — от
21 154 ₽/мес
ЧИСТЫЕ ПРУДЫ, этаж 21 из 24
Комфорт
Сдача в 2027
скидка 1 104 000 ₽
Вид во двор
показать ещё
Пред
1
2
3
След
закрыть модальное окно
Общие параметры
Проект
АСТРО
Счастье
ЧИСТЫЕ ПРУДЫ
Стоимость, ₽
от
2736000.00
-
до
11480000.00
Площадь, м²
от
20,8
-
до
100,7
Параметры объекта
Студия
1
2
3
Этаж
Любой
Этаж
Любой
Этаж
Любой
1
2
3
4
5
6
7
8
9
10
11
12
13
14
15
16
17
18
19
20
21
22
23
24
Готово
Дом
Любой
Дом
Любой
Дом
Любой
ГП-1 (АСТРО)
ГП-1 (ЧИСТЫЕ ПРУДЫ)
ГП-2 (ЧИСТЫЕ ПРУДЫ)
ГП-3 (Счастье)
ГП-4 (Счастье)
Готово
Срок сдачи
Любой
Срок сдачи
Любой
Срок сдачи
Любой
4 кв. 2025г.
1 кв. 2026г.
3 кв. 2026г.
3 кв. 2027г.
Готово
Дополнительно
Особенности квартир
Два санузла
Мастер-спальня
Гардеробная
Угловое окно
Терраса
Окна на две стороны
Вид во двор
Постирочная
Вид на лес
Вид на улицу
Лоджия
Показать 31 квартиру
Сбросить
Мы применяем cookie для стабильной работы сайта и аналитики. Вы можете настроить использование cookie, а также узнать подробности в
политике конфиденциальности
.
Настроить
Принять всё
закрыть модальное окно
Настройка cookies
Обязательные
Файлы cookie, которые необходимы для функционирования паритет.рф
Маркетинговые и аналитические
Эти cookie помогают отслеживать работу сайта, собирать статистику использования и измерять эффективность нашей рекламы.
Проекты
Недвижимость
Ипотека
Подборки
закрыть модальное окно
Заказать такси
Оставьте номер — перезвоним и уточним детали
Номер телефона
Отправить
Нажимая отправить вы соглашаетесь с
обработкой персональных данных
закрыть модальное окно
Получите консультацию
Позвоним в течение 15 минут и ответим на все ваши вопросы
Ваше имя
Номер телефона