Для полноценной работы сайта, необходимо включить JavaScript!
Тюмень
Тюмень
Тюмень
Тюмень
Екатеринбург
Екатеринбург
Готово
Подберём квартиру за
пару кликов
Найти квартиру
пару кликов
*2011
Недвижимость
Проекты
Квартиры
Ипотека
О компании
Контакты
Тендеры
Подборка
Меню
Меню
Назад
Проекты
Квартиры
Парковочные места
Кладовые
Коммерция
Контакты
О компании
Все проекты
Все проекты
3 проекта
Чистые Пруды
290 квартир
от 3 740 000 ₽
Астро
97 квартир
от 7 024 000 ₽
Счастье
30 квартир
от 2 490 000 ₽
Все квартиры
417 предложений
Чистые Пруды
290 предложений
Астро
97 предложений
Счастье
30 предложений
Все парковки
97 предложений
Чистые Пруды
31 предложение
Астро
66 предложений
Все кладовые
223 предложения
Чистые Пруды
107 предложений
Астро
116 предложений
Все коммерция
15 предложений
Чистые Пруды
6 предложений
Астро
8 предложений
Счастье
1 предложение
Скидки до 20%
на все квартиры
Консультация
Тюмень
Тюмень
Выберите город
Тюмень
Тюмень
Екатеринбург
Екатеринбург
Готово
*2011
Проекты
3
/
Недвижимость
752
Квартиры
417
Кладовые
223
Машиноместа
97
Коммерция
15
Подобрать квартиру
Проект
Любой
Проект
Любой
Проект
Любой
АСТРО
Счастье
ЧИСТЫЕ ПРУДЫ
Готово
Количество комнат
Студия
1
2
3
Стоимость, ₽
от
2490000.00
-
до
11480000.00
Площадь, м²
от
21,5
-
до
100,7
Срок сдачи
Любой
Срок сдачи
Любой
Срок сдачи
Любой
2 кв. 2026г.
3 кв. 2026г.
3 кв. 2027г.
Готово
Показать все фильтры
Сбросить
2-комн. квартиры
С мастер-спальней
C террасой
С гардеробной
С двумя санузлами
Нашли 248 квартир
Сначала дешевле
Сначала дешевле
Сортировать
Сначала дешевле
Сначала дороже
Больше площадь
Меньше площадь
Готово
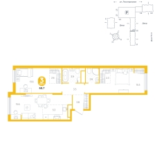
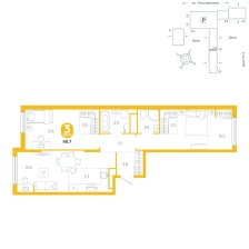
2-комнатная, 64.5 м²
7 992 000 ₽
9 990 000 ₽
В ипотеку — от
35 973 ₽/мес
ЧИСТЫЕ ПРУДЫ, этаж 19 из 24
Комфорт
Сдача в 2027
скидка 1 998 000 ₽
Два санузла
Мастер-спальня
2-комнатная, 68.6 м²
7 992 000 ₽
9 990 000 ₽
В ипотеку — от
35 973 ₽/мес
ЧИСТЫЕ ПРУДЫ, этаж 8 из 24
Комфорт
Сдача в 2027
скидка 1 998 000 ₽
Два санузла
Окна на две стороны
2-комнатная, 60.8 м²
8 000 000 ₽
10 000 000 ₽
В ипотеку — от
35 973 ₽/мес
АСТРО, этаж 9 из 15
Комфорт
Сдача в 2026
скидка 2 000 000 ₽
Два санузла
Угловое окно
2-комнатная, 60.8 м²
8 024 000 ₽
10 030 000 ₽
В ипотеку — от
35 973 ₽/мес
АСТРО, этаж 10 из 15
Комфорт
Сдача в 2026
скидка 2 006 000 ₽
Два санузла
Угловое окно
2-комнатная, 61.9 м²
8 024 000 ₽
10 030 000 ₽
В ипотеку — от
35 973 ₽/мес
АСТРО, этаж 3 из 15
Комфорт
Сдача в 2026
скидка 2 006 000 ₽
Два санузла
Мастер-спальня
2-комнатная, 67.1 м²
8 032 000 ₽
10 040 000 ₽
В ипотеку — от
35 973 ₽/мес
ЧИСТЫЕ ПРУДЫ, этаж 14 из 24
Комфорт
Сдача в 2027
скидка 2 008 000 ₽
Два санузла
Мастер-спальня
2-комнатная, 67.1 м²
8 040 000 ₽
10 050 000 ₽
В ипотеку — от
35 973 ₽/мес
ЧИСТЫЕ ПРУДЫ, этаж 15 из 24
Комфорт
Сдача в 2027
скидка 2 010 000 ₽
Два санузла
Мастер-спальня
Нужна помощь с выбором?
Пройти квиз
2-комнатная, 68.6 м²
8 040 000 ₽
10 050 000 ₽
В ипотеку — от
35 973 ₽/мес
ЧИСТЫЕ ПРУДЫ, этаж 13 из 24
Комфорт
Сдача в 2027
скидка 2 010 000 ₽
Два санузла
Окна на две стороны
2-комнатная, 60.8 м²
8 040 000 ₽
10 050 000 ₽
В ипотеку — от
35 973 ₽/мес
АСТРО, этаж 11 из 15
Комфорт
Сдача в 2026
скидка 2 010 000 ₽
Два санузла
Угловое окно
2-комнатная, 58.1 м²
8 040 000 ₽
10 050 000 ₽
В ипотеку — от
35 973 ₽/мес
АСТРО, этаж 12 из 15
Комфорт
Сдача в 2026
скидка 2 010 000 ₽
Два санузла
Мастер-спальня
2-комнатная, 68.6 м²
8 056 000 ₽
10 070 000 ₽
В ипотеку — от
35 973 ₽/мес
ЧИСТЫЕ ПРУДЫ, этаж 14 из 24
Комфорт
Сдача в 2027
скидка 2 014 000 ₽
Два санузла
Окна на две стороны
показать ещё
Пред
1
...
9
10
11
12
13
...
23
След
закрыть модальное окно
Общие параметры
Проект
АСТРО
Счастье
ЧИСТЫЕ ПРУДЫ
Стоимость, ₽
от
2490000.00
-
до
11480000.00
Площадь, м²
от
21,5
-
до
100,7
Параметры объекта
Студия
1
2
3
Этаж
Любой
Этаж
Любой
Этаж
Любой
1
2
3
4
5
6
7
8
9
10
11
12
13
14
15
16
17
18
19
20
21
22
23
24
Готово
Дом
Любой
Дом
Любой
Дом
Любой
ГП-1 (АСТРО)
ГП-1 (ЧИСТЫЕ ПРУДЫ)
ГП-2 (ЧИСТЫЕ ПРУДЫ)
ГП-4 (Счастье)
Готово
Срок сдачи
Любой
Срок сдачи
Любой
Срок сдачи
Любой
2 кв. 2026г.
3 кв. 2026г.
3 кв. 2027г.
Готово
Дополнительно
Особенности квартир
Два санузла
Мастер-спальня
Гардеробная
Угловое окно
Терраса
Окна на две стороны
Вид во двор
Постирочная
Вид на лес
Вид на улицу
Лоджия
Показать 248 квартир
Сбросить
Мы применяем cookie для стабильной работы сайта и аналитики. Вы можете настроить использование cookie, а также узнать подробности в
политике конфиденциальности
.
Настроить
Принять всё
закрыть модальное окно
Настройка cookies
Обязательные
Файлы cookie, которые необходимы для функционирования паритет.рф
Маркетинговые и аналитические
Эти cookie помогают отслеживать работу сайта, собирать статистику использования и измерять эффективность нашей рекламы.
Проекты
Недвижимость
Ипотека
Подборки
закрыть модальное окно
Заказать такси
Оставьте номер — перезвоним и уточним детали
Номер телефона
Отправить
Нажимая отправить вы соглашаетесь с
обработкой персональных данных
закрыть модальное окно
Получите консультацию
Позвоним в течение 15 минут и ответим на все ваши вопросы
Ваше имя
Номер телефона